目前網絡上有大量關于WZP2-6.4/5的頁面,用戶一定要謹慎選擇,WZP2-6.4/5質量出問題時更換成本是天價:需要汽輪機停機開蓋,直接停機的發電損失和開汽輪機蓋成本需要數萬元!汽輪機廠原廠配件才能保障您的發電機組長期持續穩定運行!

說明:WZP2-6.4/5 產品出廠時標準配置是不焊接冷壓接線端子的,用戶特別要求時才有接線端子。本圖例中是單支式汽輪機鉑電阻的實物照片,WZP2-6.4/5 產品的引出線是六根。
核心技術
WZP2-6.4安裝于汽輪機內部,產品具有高可靠性、長壽命、耐油、抗震、測溫精度高、結構合理的特點。
1、長壽命
伴隨設備生產技術水平的提高和電力需求的持續增長,汽輪發電機組年持續運行時間延長,汽輪機組的檢修或大修周期間隔時間隨之增大。WZP2-6.4用進口微型鉑絲測溫元件、專用耐油引線和先進工藝技術生產,經長期配套運行檢驗,昌暉儀表制造有限公司生產的鉑電阻使用壽命到達進口裝機件水平,完全滿足汽輪發電機組或水電發電機組測溫要求。
WZP2-6.4安裝于汽輪機內部狹小或封閉空間,只有引線與溫控儀表相連接。汽輪機運行時產品不能維修和更換,若產品損壞需要吊裝汽輪機上蓋才能更換。
2、高性能
汽輪機軸承溫度測量信號通常接入發電機組保護和報警系統,作用于發電機組出口跳閘或報警。例:推力軸承是汽輪機組關鍵部位之一,推力軸承瓦溫是監測推力瓦運行狀態的唯一手段,該溫度信號必須接入保護系統。推力瓦溫度60℃時系統發出聲光報警;推力瓦溫度60℃時保護系統作用于跳發電機出口斷路器,發電機組停止運行。云南昌暉儀表制造有限公司鉑電阻性能穩定可靠,在華電集團、華能集團、南方電網等公司長期裝機使用,以過硬產品品質滿足發電機組測溫要求。
3、抗振動
WZP2-6.4/5測溫探頭和引線長期浸泡在30-50℃順機組轉動方向流動透平油中,承受油流的徑向剪切力和機組振動的上下剪切力,不做特殊處理鉑電阻將出現根部斷裂、Pt100元件損壞、Pt100元件與引線連接部位斷裂。昌暉儀表采用進口微型鉑絲元件和全密封抗振結構生產WZP2-6.4,產品可長期穩定使用在振動環境中。
4、產品耐油
WZP2-6.4測溫探頭和引線長期浸泡在流動透平油中,引線長時間承受著30-50℃油脂侵蝕,國內生產商常用鉑電阻引線容易出現開裂、破皮、變硬和變脆,導致Pt100鉑電阻根部完全斷開或因斷裂造成信號接觸不良。昌暉儀表定制聚四氟乙烯護套的耐高溫屏蔽電纜做WZP2-6.4引線,引線可在-250~250℃溫度中長期使用,耐強酸堿、強養護劑、油脂、酮、醚等侵蝕,解決了鉑電阻引線在透平油長期使用中開裂或斷裂的故障。
5、引線外徑選擇
對于不同容量和轉速的汽輪發電機組,汽輪機油膜甩起速度和沖擊力均不相同,昌暉儀表經長期現場應用數據驗證選擇了Φ5.4mm外徑的鉑電阻引線,確保整只產品的機械強度和安裝強度。
6、高精度
WZP2-6.4在2mm內孔的保護管中有兩個A級進口鉑絲微型Pt100測溫元件,整支產品由兩個三線制鉑電阻組成,滿足發電機組高精度測溫要求。
7、結構合理
WZP2-6.4和WZP2-3.2/150/5均采用進口微型鉑絲電阻元件,外加特殊結構金屬保護管、與汽輪機內部尺寸配套的安裝結構及帶有聚四氟乙烯護套的耐高溫屏蔽電纜構成,方便使用單位拆裝和精確定位。
8、抗干擾
汽輪機高性能鉑電阻引線內部有一體化致密網狀屏蔽層,在信號傳輸過程中能有效隔離磁場和電場對鉑電阻的干擾。
技術指標
1、精度等級:△t=±(0.3℃+0.005|t|),滿足JB/T8622-1997 A級和IEC751-1983 A級要求。
2、保護管材質為1Cr18Ni9Ti,外形尺寸為Φ6.4mm,電纜外徑Φ5.4mm,引線長為型號最末位數字,保護管與電纜過渡長×××mm
3、杭汽廠計算機物位號:5-7310-0421-04
4、型號:WZP2-6.4/5
|_______ 型號最末位數字為引線長度,單位:m(通常有5m、7米和10米等規格)
5、常用產品型號:WZP2-6.4/5 WZP2-6.4/7 WZP2-6.4/10
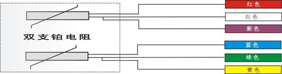
WZP2-6.4接線圖(Fixing wire)
1#測溫電阻引線顏色為紅色、白色和紫色;2#測溫電阻引線顏色為藍色、綠色和黃色
