昌暉儀表在本文介紹電伴熱的工作原理及電伴熱帶的組成和安裝,并以新疆某項目為例具體闡述電伴熱的組成、設計及應用。
水泥生產線余熱發電項目很多都建在西北地區的青海和新疆,這些地區的冬季最低氣溫一般都能達到-30℃左右,在不考慮保溫及伴熱技術的情況下,暴露在相對開放空間中的設備及儀表會出現由于溫度太低無法正常工作的現象,尤其在汽輪機停機時,會出現儀表導壓管凍堵現象,甚至會發生爆裂,寒冷的天氣隨時會給這部分管道帶來損害。為了保證設備的安全可靠及機組的正常運行,就需要在寒冷地區對設備及管道采取伴熱,保證管道在嚴寒的冬季能夠正常使用。
在工程中,伴熱一般有電伴熱和蒸氣伴熱兩種方式,在余熱發電伴熱設計項目中一般采用電伴熱。
1、電伴熱簡介
電伴熱是用電熱的能量來補充被伴熱體在工藝流程中所散失的熱量,從而維持流動介質最合理的工藝溫度。電伴熱是沿管線長度方向或罐體容積大面積上的均勻放熱,溫度梯度小,熱穩定時間較長,具有熱效率高、節約能源、設計簡單、施工安裝方便、無污染、使用壽命長、能實現遙控和自動控制等優點。
①電伴熱的原理
電伴熱帶接通電源后(注意尾端線芯不得連接),電流由一根線芯經過導電的PTC材料到另一線芯而形成回路。電能使導電材料升溫,其電阻隨之增加,當芯帶溫度升至某值之后,電阻大到幾乎阻斷電流的程度,其溫度不再升高,與此同時電伴熱帶向溫度較低的被加熱體系傳熱。電伴熱帶的功率主要受控于傳熱過程,隨被加熱體系的溫度自動調節輸出功率。
②電伴熱的組成及安裝
A、組成一個項目的電伴熱主要由以下四部分組成:
a、自控溫保溫箱(對變送器進行保溫);
b、電伴熱電纜:自限溫伴熱電纜(低溫型)、自限溫伴熱電纜(中溫型)、MI恒功率伴熱電纜;
c、伴熱電源箱(對各個自控溫保溫箱及電伴熱電纜進行供電);
d、安裝輔材(電源接線盒、終端冒、玻璃絲帶、鋁箔膠帶、石棉纖維繩等)。
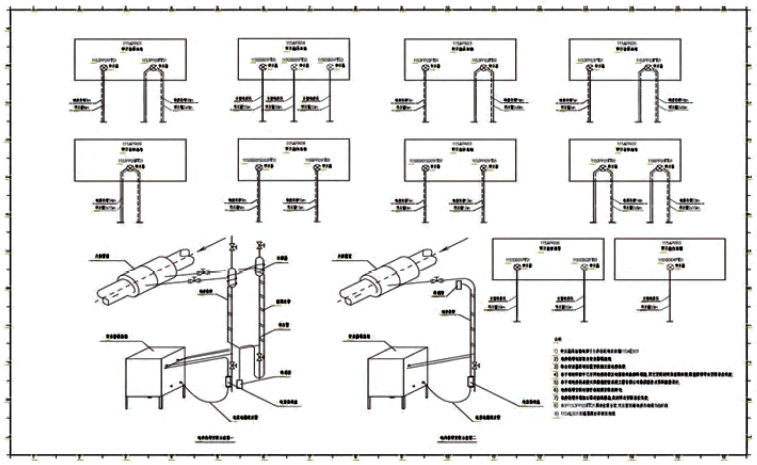
B、安裝圖1為壓力變送器及差壓變送器的電伴熱帶安裝示意圖。

圖1 壓力變送器及差壓變送器的電伴熱帶安裝示意圖
電伴熱安裝要求:采用鋁箔膠帶粘貼固定發熱電纜,使發熱電纜與管道緊密接觸,保證充分、快速傳熱。同一根發熱電纜不能纏繞不同性質及材質的管道。將2根發熱電纜沿管道直線放置,水平方向管道放置在管道下方兩側呈120°夾角,垂直方向管道放置在管道對稱的兩側,并用鋁箔膠帶每隔3-50cm固定1道。如管道下方無法放置發熱電纜,應將電纜放置在管道的兩側或上端但要適當增加纏繞系數。在放置發熱電纜前測量每根電伴熱線的電阻值,放置完成后再次測量其電阻值,確保無誤后,用鋁箔膠帶將發熱電纜和管道裹住、包嚴(搭接1cm),以確保電纜和管道表面保持緊密接觸。放置發熱電纜時不能有死結、死彎現象,穿洞、穿管時不能損傷電伴熱線的外皮。發熱電纜不能放置在管道較鋒利的邊緣,嚴禁踩踏發熱電纜,并加以保護。發熱電纜敷設的最小彎曲半徑為線徑的6倍,且不能出現交叉接觸和重疊現象,兩根線的最小間距為6cm。局部纏繞發熱電纜不能過多,以免使管道過熱燒毀發熱電纜,如必須多纏繞時,應適當減少保溫厚度。發熱電纜承受的張力應≥25kg,系統應具有接地保護功能;發熱電纜嚴禁與油漆、瀝青及其他強酸、強堿等有機污染物接觸;在安裝前,應檢查管道是否損壞或滴漏,另外發熱電纜在管道上的連接固定必須以不破壞纜線為前提,在現場環境溫度<-5℃時,發熱電纜不宜安裝。在發熱電纜安裝完畢后,必須核查發熱電纜的標稱電阻和絕緣電阻,然后包裹保溫材料,最后連接電源。
2、新疆某余熱發電項目中電伴熱的實際應用
①工程概述新疆某水泥有限責任公司水泥熟料生產線余熱發電項目地處較寒冷地帶,儀表導壓管道以及機務取樣排污加藥管道需要做電伴熱,使其在室外氣溫較低的情況下不受凍(冬季室外溫度-37℃)。
②技術要求
a、電伴熱電控箱規格:前開門,戶外式。
b、儀表保溫箱規格:儀表保溫箱所使用的電伴熱元件是連續自動調節功率型,隱藏于夾層中,箱體內層四壁能均勻向箱內輻射傳熱,箱內溫度自動調節,能確保箱內儀表正常工作。
c、箱內設有安裝變送器的支架;應留有導壓管的穿入孔,下方留有220VAC電源進線和4-20mA信號的進出線孔。
d、伴熱電纜要求:儀表導壓管伴熱電纜應按自限溫伴熱帶考慮,伴熱電纜應能夠使導壓管的溫度維持在5℃以上的要求。本項目中只有機務取樣排污加藥管道根據介質溫度選擇恒功率伴熱電纜,機務給水管道根據介質溫度選擇自限溫伴熱電纜(中溫型),伴熱電纜應能夠使機務管道的溫度維持在5℃以上。
③電伴熱的設計要求
該項目電伴熱的設計見圖2和圖3。

圖2 電伴熱電控箱供電圖
圖2是電伴熱電控箱給各個儀表保溫箱及機務管道的電伴熱電源盒進行供電的設計圖。設計的重點在于使用Pt100熱電阻為測溫元件,高性能經濟型顯示控制儀YR-GFC403-01-08-HN-N-T作為控溫核心設備,除了應該給每個需要伴熱的設備及管道供熱外,每個電伴熱回路需使用帶漏電保護的斷路器,還應該考慮三相回路的平衡問題。由于在室外安裝選擇的防護等級為IP55,儀表部分的電伴熱回路功率計算公式為:P(總功率)=P(自控溫保溫箱功率)+伴熱電纜每米功率×伴熱電纜長度。

圖3 保溫箱及電伴熱帶安裝示意圖
圖3為保溫箱及電伴熱帶安裝示意圖。從圖中可以看出,變送器根據取源點位置的遠近,就近合理分配自控溫保溫箱,這樣可以盡可能地縮短需要伴熱的管道,并沒有采用一對一的自控溫保溫箱,是考慮到一對一安裝既浪費現場空間而且費用更高。圖中左下角為差壓變送器及壓力變送器的安裝示意圖。此圖中并沒有體現機務管道的電伴熱,應根據管道里面介質的溫度來選擇是使用自限溫伴熱電纜還是MI恒功率伴熱電纜。伴熱電纜選型:一般來說在介質溫度<65℃的時候,選擇自限溫伴熱電纜(低溫型);在介質溫度低于120℃高于65℃的時候,選擇自限溫伴熱電纜(中溫型);在介質溫度低于190℃高于120℃的時候,選擇自限溫伴熱電纜(高溫型);在介質溫度<200℃使用MI恒功率伴熱電纜。此溫度選擇適用于機務管道,同樣也適用于儀表導壓管(注:MI恒功率伴熱電纜不能懸空敷設)。
④應用總結
首先,統計需要電伴熱的儀表及儀表導壓管的長度,統計需要電伴熱的機務管道數量及長度;其次,根據介質的溫度選擇使用哪種伴熱電纜;最后,根據現場取源點合理安排自控溫保溫箱。
⑤其他項目設計中可能會出現的問題
此項目中的機務管道由于管徑都比較細,所以選擇的電伴熱電纜均為15W/m,但是并不代表其他項目中的機務管道電伴熱電纜均為15W/m。具體每米電伴熱電纜的功率應根據機務管道的管徑來決定。
為了機組安全可靠的運行,在寒冷地區對儀表導壓管及部分機務管道進行電伴熱都是必要的。了解工程電伴熱的組成,在施工安裝中要嚴格按照安裝要求進行安裝,以保證電伴熱的正常工作。在實際工程應用中,要根據不同的溫度選擇電伴熱電纜,并根據距離的遠近來選擇哪些變送器需要集中安放。
