該井巖氣三甘醇脫水橇裝置工藝流程包括井口模塊、除砂橇、分離計量橇、清管出站橇、計量裝置和放空系統。采自井口的原料氣經一級節流后進入除砂工藝,除去砂礫后,再經二級節流進入氣液分離器進行分離,分離后的原料氣輸至脫水裝置處理,脫水后的天然氣經計量后,通過井中心站內的脫水裝置進行脫水處理,再進行管線外輸。

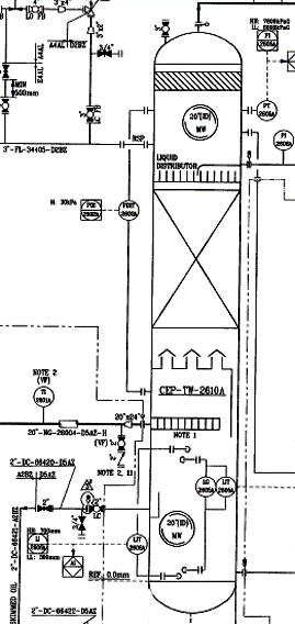
脫水接觸塔圖解
1、三甘醇脫水原理優勢及再生原理
三甘醇水溶液對水有高的濕溶度,再生容易、濃度可達98.7%,蒸汽壓低、攜帶損失小、露點降高(28-58℃)。

2、天然氣進口導流板
作用是分散流體,吸收或控制液體的動量。濕天然氣進入塔后,經過進口導流板,使流體的動量轉到切向流量路,流體環繞容器壁流動,產生離心力作用,重力使離開入口裝置的流體產生初分離。
3、煙囪塔盤
濕天然氣經入口導流后向上流動,并沿煙囪塔盤的煙囪通道上升至第一層填料。煙囪狀的通道有利于氣體的擴散,頂部的帽便于氣體中的雜質以冷凝的形式分離出去。
4、規整填料
接觸塔從上至下共設置12層整床高的填料和2層半床高填料,填料材質316SS不銹鋼,上下填料支撐材質也為315SS不銹鋼。
5、頂部捕霧器
能有效的捕獲天然氣中攜帶的液體,主要安裝在TEG塔頂部,一般為絲網型,6”厚,可拆卸,材料為316SS不銹鋼。
6、貧三甘醇進口分配器
貧三甘醇進口分配器主要是將進入接觸塔的貧三甘醇分配均勻,使貧三甘醇與濕天然氣均勻充分的接觸。
7、流冷凝器
主要是控制再沸爐出口氣體溫度;同時為來自接觸塔的富三甘醇(富液)進行預熱,冷凝器的溫度對三甘醇再生起著很重要的做用,為了防止泛液和甘醇損失,回流冷凝器的溫度一般設定在100℃。
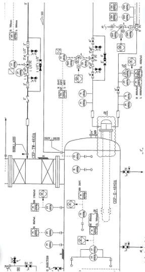
三甘醇脫水裝置-再生橇
貧/富三甘醇換熱器在整個系統中有兩個,作用都是利用貧干醇的熱量給富甘醇進行加熱,閃蒸罐換熱器:用于將富液中的氣體和輕烴從罐內閃蒸出來進入火炬。

1、貧甘醇由塔上部進入吸收塔,由上而下與由下而上的濕天然氣充分接觸,吸收濕天然氣中的水份。吸收水份后成為富液的甘醇溶液在塔下部出口流出,經甘醇泵進入精餾柱換熱盤管,被精餾柱頂蒸汽加熱至約60℃后進入閃蒸罐。
2、甘醇由閃蒸罐下部流出,經過閃蒸罐液位控制閥,進入過濾器和活性炭過濾器,通過過濾器除去富甘醇中50μm以上的固體雜質,通過活性炭過濾器吸附掉富液中的部分氣體和物質,過濾器均設有旁通管路。
3、經過濾器后富甘醇進入換熱器,與重沸器下部儲液罐流出的熱貧甘醇換熱升溫至130-160℃后進入精餾柱。
4、在精餾柱中,通過精餾段、塔頂回流及塔底重沸的綜合作用,使富甘醇中的水份分離出塔,塔底重沸溫度為196-202℃,甘醇重量百分比濃度約為99.0%。
5、儲液罐中的貧甘醇經貧液汽提柱溢流至重沸器下部甘醇儲液罐,在貧液汽提柱中可由引入汽提柱下部的熱干氣對貧液進行汽提,經過汽提后的甘醇重量百分比濃度可達99.5-99.8%。
6、貧液經過儲液罐外壁的散熱,溫度降至180℃左右出儲液罐,進入板式貧富液換熱器,與富甘醇換熱,溫度降至45-60℃左右進甘醇泵,由甘醇泵增壓后進套管換熱器與外輸氣體換熱至25-40℃進入吸收塔頂部循環利用。
