
圖1 傳統實體房屋閥室工藝閥組區及自動控制室
1、防爆控制小屋
1.1 設計思路
傳統一座帶實體房屋的閥室建設總工期大約需要11個月的時間,其中在實體房屋建設前手續辦理工作上大約需要8個月的時間;在后期施工過程中土建專業需配合工藝、電氣、儀表等專業施工并提供作業面,在實際施工過程中各專業施工隊伍間的協調給項目管理帶來了不少的困難;另外,由于部分閥室建設項目用地手續辦理困難使實體房屋無法建設,給傳統閥室建設工作帶來了更大的不確定性。
基于上述因素,加之天然氣長輸管道閥室工藝主要為一個主線路截斷閥和配套旁通管道和放散管道(和放散裝置)組成的工藝閥組區(見圖1),工藝相對比較簡單,因此提出了不建設實體房屋,將工藝閥門管道、配電設備和自動控制設備等均露天建設的設想。由于天然氣長輸管道閥室建設項目多位于人跡較少的位置,無線網絡通訊不穩定等因素,所以放棄了無線遠程控制的方案,堅持以有線網絡通訊為主、無線網絡為輔的網絡通訊方案,并以RTU控制系統為中心配置UPS不間斷電源、低壓配電箱,以及安防周界、視頻監控等設備。又因設備配置較多,現場分散布置安裝調試工程量較大,且設備運行對環境有一定的要求,建設方向調整到將各種強弱電設備集成在撬裝式小屋內,并開始進行小屋內設備擺放布局,尺寸確定,配套功能設備新增等工作。
1.2 設計原則
由于天然氣是易燃易爆氣體,因而閥室屬于典型的易燃易爆生產場所,防爆控制小屋的設計應遵循如下原則:
1)規范性。小屋整體防爆認證要滿足爆炸2區的使用要求,確保極端情況下小屋能夠放置在爆炸區域內使用;小屋內部設備的安裝和線路布置應橫平豎直,滿足防爆要求并保證整齊美觀,確保符合國家標準、技術規范及行業標準。
2)安全性。防爆控制小屋需要全面的安全保護措施,不僅應具有可燃氣體可燃檢測、氧氣含量實時監測和火災煙感探測報警設備及聯鎖防爆風機和聲光報警器工作的功能,還應滿足防雷擊、過流和漏電保護功能,保證防爆控制小屋的整體安全性能。
3)布局合理性。由于小屋內部集成了多種設備,在設計時應充分考慮在滿足功能的前提下,充分降低集成復雜程度,減小各功能區設備的尺寸,并通過合理布局,兼顧后期使用操作和維修方便,盡可能減小小屋的占地面積。
4)可維護性。防爆控制小屋內部設備均應易操作、易維護,確保出現故障時能及時、快速地進行檢維修。
1.3 主要構成
防爆控制小屋長×寬×高尺寸為2.5×2.5×2.4(m),總占地面積不足7m2。小屋外墻板采用304不銹鋼板,內墻板采用1.5mm厚的碳鋼噴塑,內外墻及屋頂和房頂之間充填75mm厚的聚氨酯絕熱阻燃材料。整座小屋作為非第一類防雷建筑物,不銹鋼金屬屋面符合滿足設計規范要求作為接閃器使用,小屋無需再單獨設置防雷接閃裝置。小屋采用由工字鋼焊接而成的框架式結構,側墻每0.5m加裝負重材料一根,進一步增強負重能力。
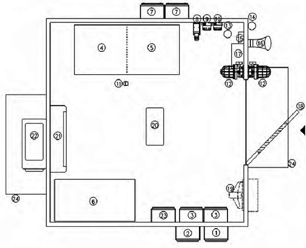
為了盡可能減少小屋的占地面積,小屋內部設備布置在多次討論后,最終按如下方案布置:


圖2 防爆控制小屋內部俯視圖及正面平視圖
1)低壓配電系統:防爆低壓電源進線箱(1)、防爆電源出線箱(2)、防爆公共配電箱(3)、防爆維修插座(8)。
2)RTU控制系統:防爆RTU控制柜(4)、防爆UPS電源柜(6)、防爆儀表接線箱(7)。
3)安防監控及語音對講系統:防爆網絡視頻對講柜(5)、室內防爆攝像機(13)、室外防爆攝像機(14)、防爆拾音器(15)、防爆告警器(16)、防爆電子門禁(17)、防爆電子門禁讀卡器(25)。
4)氣體火災報警系統:防爆氧氣探測器(9)、防爆甲烷探測器(10)、防爆煙感探測器(11)、防爆聲光報警器(12)。
5)正壓通風系統:正壓防爆風機(19)、防爆風機防爆開關(27)。
6)照明裝置:防爆應急熒光燈(20)、室內熒光燈防爆開關(26)。
7)防爆空調:防爆空調壁掛內機(21)、防爆空調外機(22)、防爆空調遠程控制箱(23)。
8)其他:防爆控制小屋帶機械逃生鎖門(18)、逃生鎖機械鑰匙盒(28)和遮雨棚(24)。
1.4 主要功能及特點
1)低壓配電功能。接入外部380VAC低壓供電電源后,可將電源分配至天然氣閥室現場及小屋內各用電設備,例如:室外照明燈、室外電動執行機構、室內UPS電源、室內防爆空調、室內防爆檢修插座等。
2)自動控制功能?,F場RTU自動控制系統是天然氣SCADA生產調度系統中的重要組成部分,同時也是燃氣生產輸配設備三級控制中的現場遠程控制層面的系統。它接收現場壓力、溫度等儀表信號和閥門設備狀態反饋信號,在現場的觸摸屏上顯示并通過網絡遠傳至SCADA生產調度系統中心平臺展示,也可以接收SCADA生產調度系統中心平臺閥門控制命令或自行遠程控制現場燃氣生產設備,實現遠程控制功能。另外,除了常規的生產設備控制功能外,還可以遠程開關室外照明設施、室內空調、防爆風機、防爆聲光報警器等設備。
3)安防監控及語音對講功能。防爆控制小屋內外部各設置一個帶云臺功能的防爆攝像機,操作人員可以通過攝像機實時觀察室內外設備安全情況監視。另外通過功放機、防爆拾音器和防爆揚聲器可以實現現場與SCADA生產調度系統語音對講,尤其是當現場有人非法入侵后,及時將入侵報警信號上傳SCADA生產調度系統,值班監控人員可以根據報警信息通過對現場喊話,語音警戒入侵者,達到震懾作用。
4)防爆控制小屋非法入侵報警功能??刂菩∥葸M門處設有防爆電子門禁,信號遠傳至SCADA生產調度系統提示值班監控人員,以防他人未經允許進入控制小屋,增加了控制小屋的安全性能。門上安裝了安全玻璃窗,操作人員進門前可透過玻璃觀察屋內情況。小屋門也安裝了機械“緊急逃生鎖”,以便一旦鎖上能從里面打開。
5)小屋內部環境安全聯鎖功能。根據相關規定及規范,分析小屋都配置了安全監測報警設備。小屋內部設置溫濕度傳感器,實時檢測內部環境條件。并在RTU自動控制系統內,通過設置聯鎖控制邏輯,可以實現小屋內溫度超高(≥35℃)報警,自動開啟防爆空調進行制冷或制熱,使小屋內部溫度保持在20℃~28℃之間,保障小屋內設備正常工作;另外在小屋內設置防爆煙感火災探測器、甲烷氣體探測器、氧氣濃度探測器,根據煙感火災報警、甲烷氣體濃度高報(≥25%LEL)、氧氣濃度低報(≤19.5%)3個實時信號,任一條件滿足即可自動開啟防爆風機通風,并聯動聲光報警器進行報警提示,保障生產人員安全。
6)撬裝式結構集成。整座防爆控制小屋的所有設備集成在撬裝式鋼結構上,設計緊湊,占地面積小。主要安裝及測試工作在工廠內完成,現場安裝工作量和測試量少,僅需進行少量電力電纜、儀表控制線纜的接線并進行設備測試即可實現功能。小屋整體重量約3噸,吊裝安拆和遷移方便。

圖3 廬巢線槐林閥室帶控制點的工藝流程圖
7)防爆認證。防爆控制小屋具有整體Ex II CT4 Gc防爆認證,在閥室無法得到足夠的批復面積時,能夠放置在天然氣工藝裝置區爆炸2區域內正常工作。
8)復制化程度高。由于天然氣長輸管道沿線配套建設閥室工藝簡單(如圖3所示),管道壓力檢測儀表、可燃氣體探測儀表、企業聯動閥門及電動閥門數量變化幅度不大,防爆控制小屋制造方案一經確定即可根據項目需要進行復制建造,可以進行多項目推廣應用。
2、防爆控制小屋應用實例
為推進天然氣管網建設,提升合肥、六安、無為等市天然氣供應保障能力,優化能源消費結構,某公司大力推進新橋機場—金安東橋天然氣管道工程(以下簡稱“合六線”)、環巢湖天然氣高壓管線工程廬江—巢湖段(以下簡稱“廬巢線”)和合肥—巢湖段(以下簡稱“合巢線”)、合肥廬北至池州高壓天然氣管線工程(以下簡稱“廬池線”)、合肥天然氣繞城高壓管線工程(以下簡稱“繞城高壓管線”)項目建設,項目沿線建設若干調壓站、輸氣站及閥室。自2020年7月開始,陸續在繞城高壓管線龍塘閥室、南淝河閥室、錦繡大道閥室,合六線高店閥室、高升閥室、官亭閥室,廬巢線冶父山閥室、盛橋閥室、槐林閥室,共計9座閥室項目上應用,并陸續在2021年完成投產,讓六安金寨革命老區和無為市人民用上了優質的管道天然氣,目前設備運行良好。下一步將持續推廣該防爆控制小屋在合巢線5座閥室項目、廬巢線剩余3座閥室項目及廬池線6座閥室項目建設中的應用,進一步在省級天然氣主干網工程項目發揮防爆控制小屋的效益。部分已建成投產閥室防爆控制小屋如圖4所示。

圖4 部分已建成閥室圖片
3、防爆控制小屋應用效益分析
3.1 建設工期方面
防爆控制小屋屬于設備,無需傳統閥室房屋建設的行政審批手續的辦理。小屋的集成制造均在工廠內部,大幅減少了土建、工藝、電氣、儀表專業施工交叉作業和進度制約問題帶來的影響,現場小屋基礎具備承重條件即可吊裝至現場。該防爆控制小屋的應用,相較傳統閥室建設至少節省9個月的工期。
|
3.2 工程造價方面
以合六線高流閥室為例的傳統閥室房屋、低壓配電及儀表控制系統設備費用造價共計約80萬元;而以合六線高升閥室為例的防爆控制小屋和混凝土基礎的造價共計約32萬元,節省金額約48萬元,工程造價成本降幅達60%,經濟效益顯著。
3.3 自動化程度方面
防爆控制小屋具備遠程開關照明燈、遠程開關空調及屋內超溫自動開空調降溫等功能,相較傳統閥室的手動開照明、空調等方式,具有更高的自動化程度,值班監控人員可以通過SCADA生產調度系統遠程操作相關設備,查看設備反饋信號、視頻畫面核對即可了解閥室設備是否處在正常工況,減少人員前往閥室現場巡檢次數,提高了生產運營單位的運維效率,尤其是在閥室位置偏遠、環境惡劣的項目,尤其顯得重要。
3.4 應急處置方面
防爆控制小屋為撬裝集成式,安裝拆卸簡單,吊裝運輸簡便。廬巢線部分閥室位于泄洪區或低洼地帶,如若后期遇到泄洪、持續強降雨等特殊情況,可提前將小屋外部的少量線纜拆除后吊裝運走,待水位下降后再行恢復安裝即可恢復生產運營。減少因設備被水浸泡損壞情況的發生,最大限度減少公司的損失,保障公司財產安全。
4、未來應用改進方向
由于個別防爆控制小屋四周空曠,鏤空圍墻無法提供陽光遮擋的環境條件,在后期小屋建造中可根據項目現場實際條件和需要在小屋的頂部加裝可替代防雷接閃器的不銹鋼遮陽棚,減少夏季長時間陽光暴曬熱量傳導進小屋內部,緩解小屋內部持續高溫帶來空調長時間滿負荷工作的壓力,減少電能的消耗,降低生產運營成本。
另外,由于部分閥室用地批復面積足夠,控制小屋可放置在防爆區域以外,可新增不采用防爆產品集成的控制小屋方案,進一步降低控制小屋的建造成本,減少工程造價。
5、結束語
防爆控制小屋作為一個多種設備集成,可重復建造和利用的一體化設備,在某公司高壓天然氣管線工程建設上得到了較好的應用。防爆控制小屋雖然是當時工程建設需求的一個產物,但是凝聚了參與制造人員的知識和汗水,尤其是在第一座防爆控制小屋建造后進行了大幅度優化和改良,最終確定了一套成熟的方案。但在工程建設管理過程中,沒有一成不變的解決方案,要根據不同的實際情況,采用不同的解決辦法。因此,防爆控制小屋在一定程度上可以作為一個建設理念,根據新的問題進行相應調整和改變,但是宗旨都是為了給工程建設解決難題,給一線生產使用人員提供現代化自動化的管理工具,給企業節約工程項目建設期和運營期的成本支出,提高工程建設和生產運營的管理效率。
作者:張憲(合肥合燃華潤燃氣有限公司)
