• 繼電保護設備中關于投切壓板顏色規定

    繼電保護設備中關于投切壓板顏色規定:保護跳閘等壓板為紅色,功能壓板為黃色,備用壓板為淺駝色

    2025/1/27 0:00:29 人評論 次瀏覽
  • 明明大地的電阻比導體的電阻還大,為什么經常說是接地短路?

    明明大地的電阻比導體的電阻還大,為什么經常說是接地短路?本文就來科普一下這個問題。1、大地的電阻比導體的電阻大么?大地的電阻是比較復雜的概念。大地可以看作是一個導體,但它的電阻率比常見的金屬導體高很多,而且一般情況下不是一個量級。當然,大地的電阻率受到土壤類…

    2025/1/26 1:50:47 人評論 次瀏覽
  • 不可忽視的時鐘系統

    時鐘系統是通過接收標準時間源(如北斗衛星、GPS等),同步同一網絡中各種時間控制和顯示設備(如母鐘、子鐘等)的時間信息,并按照要求的時間準確度向外輸出時間同步信號和時間信息的裝置

    2025/1/22 23:53:54 人評論 次瀏覽
  • 開關柜合閘母線HM和控制母線KM分開的淵源

    不知道各位面對高壓開關柜的合閘母線HM和控制母線KM時,有沒有想過為什么合閘母線HM和控制母線KM一直是分開的,什么時候可以合并呢?昌暉儀表在本文聊聊這個話題

    2025/1/14 11:20:44 人評論 次瀏覽
  • 火災自動報警系統非預期報警原因分析及對策

    火災自動報警系統的非預期報警和點型感煙火災探測器的探測效能是影響系統可靠性的關鍵因素。通過合理選型、規范施工、定期維護、科學檢測和及時更換超期服役的設備,可以顯著提高系統的整體性能,保障人員和財產的安全

    2025/1/10 11:14:56 人評論 次瀏覽
  • 李炳華:2025年建筑電氣發展趨勢

    隨著科技的不斷進步和建筑行業的發展,2025年建筑電氣領域將迎來一系列重要的變化和發展趨勢。這些趨勢不僅將提升建筑電氣系統的安全性和效率,還將推動整個行業的智能化和可持續發展。1、以強制性工程建設規范為基礎,新的工程建設標準體系逐漸完善隨著國家對建筑安全和質量的…

    2025/1/10 2:07:54 人評論 次瀏覽
  • 應急電源設置與應急電源現場問題分析

    本文結合安全檢查中暴露出的應急電源現場問題,昌暉儀表給大家分享應急電源定義、分類、應急電源設置規范要求

    2025/1/7 0:03:02 人評論 次瀏覽
  • 接觸器與馬達綜合保護器配合能分斷單相接地故障電流嗎?

    對于采用馬達綜合保護器實現接地故障保護的電動機回路,當單磁斷路器的磁保護整定值比較高導致保護靈敏度不夠,此時接觸器配合馬達綜合保護器分斷接地故障電流,需要校驗接觸器的額定分斷能力,至少是等于斷路器磁脫扣或瞬動保護整定電流值,以保證接觸器能成功分斷單相接地故…

    2025/1/6 7:55:49 人評論 次瀏覽
  • 充氣柜氣壓表溫度補償的需求場景及評估

    多數充氣柜氣壓表沒有溫度補償,僅少數充氣柜氣壓表帶氣溫補償。本文就聊聊充氣柜氣壓表溫度補償的需求場景及評估這個話題

    2025/1/3 13:40:47 人評論 次瀏覽
  • 火災報警線路額定電壓與產品標準不一致的解決方案

    在中國土木工程學會工程防火技術分會電氣安全與火災報警分論壇上北京市建筑設計研究院有限公司電氣副總工程師周有娣提及火災自動報警系統設計標準與產品標準之間不一致問題及其解決措施。GB50116-2013《火災自動報警系統設計規范》第11.1.1條明確規定:火災自動報警系統的傳輸…

    2024/12/27 11:01:11 人評論 次瀏覽
  • 低壓接觸器該如何面對"晃電"?

    為了解決“晃電”階段電動機不停機,通常會選擇抗晃電接觸器來保證主觸頭在設定時間內處于吸合狀態,只有晃電持續時間超過設定時間,接觸器才釋放;寬電壓電子線圈接觸器在一定的低電壓下具有高可靠的“抗晃電”性能,但無法避免“電壓中斷”情況下釋放的問題,且不具備按設定…

    2024/12/22 20:53:58 人評論 次瀏覽
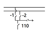
  • 繼保自動化常用原理圖

    本文整理了繼保自動化常用斷路器遙控分合閘、短路器手動分合閘、保護合閘、保護跳閘、信號開入、隔離開關遙控回路、主編非電量跳閘、母差和失靈回路、雙母線隔離開關閉鎖及其倒母回路、500kV線路主變回路簡易圖、隔離開關控制原理圖,供大家參考學習

    2024/12/22 15:06:08 人評論 次瀏覽
  • 一個接地點只壓接一根接地線

    一個接地點只壓接一根接地線。設備或器具內的接地端子不應多于2根線,以保證接地具有良好的效果

    2024/12/17 2:26:17 人評論 次瀏覽
  • 疏散標志燈具不能改成智能控制的原因

    不管是非火災狀態、還是火災狀態都必須常亮,才能保證“照度應保證疏散路線指示明確、方向指示正確清晰、視覺連續”的要求。據此:疏散標志燈具應為長明燈,除了消防應急照明自身的控制系統外,不可再另設智能控制方式

    2024/12/11 19:58:50 人評論 次瀏覽
  • IT系統中的低壓斷路器有哪些特殊要求?

    IT系統對低壓斷路器有特殊要求,主要是因為二次接地故障會導致相間短路,此時斷路器單極需要分斷系統最高額定工作電壓的相間電壓,只有通過GB/T14048.2附錄H中的試驗,才能宣稱滿足該電壓等級的IT系統,否則需要在斷路器銘牌上標識不適用于某個電壓等級的符號

    2024/12/9 0:33:51 人評論 次瀏覽
  • 變電所內能采用細水霧滅火系統嗎?

    細水霧滅火系統適用于A類、B類、C類和電氣類火災。具體如下:檔案館、圖書館、博物館、液壓站、潤滑油庫、柴油發電機房、燃氣輪機房、燃氣直燃機房、油浸電力變壓器、配電室、油開關柜室、發電機房等;民用建筑的變電所基本不使用細水霧滅火系統

    2024/12/6 19:20:46 人評論 次瀏覽
  • 開路法、替代法、電位測定法和電流測定法在電氣二次回路故障處理中的應用

    昌暉儀表結合常見電氣二次回路故障實例分享開路法、替代法、電位測定法和電流測定法在電氣二次回路故障處理中的應用,對快速查找故障和處理故障,確保生產設備安全運行大有幫助

    2024/12/3 0:11:01 人評論 次瀏覽
  • 一文弄懂低壓斷路器結構、用途、功能和脫扣器工作原理

    空氣絕緣框架斷路器、塑殼斷路器和空氣開關等是工業過程控制中常見低壓斷路器,昌暉儀表詳細介紹低壓斷路器結構、脫扣器工作原理、斷路器用途分類及斷路器各種功能,為電工和儀表工正確使用和選用低壓斷路器提供方便

    2024/12/3 0:04:01 人評論 次瀏覽
  • 交流電的周期、頻率、瞬時值、有效值、相位、相位差概念

    學習電工技術應從理論開始,昌暉儀表網在本文分享交流電的周期、頻率、瞬時值、有效值、相位、相位差相關知識

    2024/12/3 0:03:42 人評論 次瀏覽
  • 電壓和電流,哪個對人更危險

    如果必須做一個選擇,你寧愿讓220V/1A的電線電一下,還是220A/1V的電線電一下?感覺好笑之余,也感觸,很多非電力人員對電力敬畏心不夠,對整天接觸到的電壓和電流,不知道哪個對人更危險。希望本科普文章能幫助更多人認知電源,遠離危險

    2024/12/2 18:45:45 人評論 次瀏覽
  • 高壓柜操作程序

    介紹進線柜送電操作程序、進線柜停電操作程序、出線柜送電操作程序、出線柜停電操作程序、計量柜操作程序和所用變柜操作程序,規范高壓開關柜操作流程,確保操作人員安全

    2024/12/1 16:24:49 人評論 次瀏覽
  • 安全光柵Muting功能的工作原理及應用

    Muting功能應運而生!它通過特定傳感器識別正常工件并屏蔽光柵信號,使安全光幕“短暫失明”,保障設備正常運行,同時避免人員誤闖造成的風險

    2024/11/29 1:27:32 人評論 次瀏覽
  • 低于5W的照明設備不再規定諧波電流發射限值

    由于產品標準的原因,額定功率大于25W的非白熾燈照明電器諧波控制相對較好;25W及以下照明電器諧波控制相對較松;小于5W的照明設備沒有規定其發射限值,可能會成為照明電器諧波的重災區

    2024/11/27 21:11:07 人評論 次瀏覽
  • 照明電源電壓的選擇

    對于交流電源供電,1500W以下的光源推薦使用AC220V,1500W及以上的光源推薦使用AC380V。對于直流電源供電,500W及以下的回路推薦使用DC48V,500W以上的回路推薦使用DC220V(或DC+110V),大功率燈具推薦使用DC375V。對于安全特低電壓供電,水下燈具推薦使用AC12V或DC30V,移動式…

    2024/11/27 17:05:40 人評論 次瀏覽
  • 簡單了解電氣原理圖,電氣安裝接線圖,電氣系統圖和方框圖

    常用的電氣識圖主要有電氣原理圖,電氣安裝接線圖,電氣系統圖,方框圖等,本文簡單介紹這四種圖的相關知識

    2024/11/26 12:24:56 人評論 次瀏覽
  • 如何繪制電氣原理圖、電器元件布置圖、電氣安裝接線圖和二次電路圖

    昌暉儀表工程師在本文分享繪制電氣原理圖、電器元件布置圖、電氣安裝接線圖和二次電路圖的原則和具體要求,是電氣設計人員必讀的干貨技術文章

    2024/11/26 12:23:34 人評論 次瀏覽
  • 電氣二次回路圖類型及閱讀方法

    電氣二次回路圖通常有三種類型:原理接線圖(簡稱原理圖);展開接線圖(簡稱展開圖);安裝接線圖(簡稱安裝圖)。閱讀二次回路圖時,首先要熟悉常用文字符號、電氣圖形符號和了解二次回路的編號,然后要掌握二次回路圖閱圖要領。本文重點介紹三種接線圖的閱讀方法

    2024/11/26 12:21:06 人評論 次瀏覽
  • 10KV高壓電纜頭電纜終端接頭制作方法及敷設要求

    分享10KV高壓電纜電纜頭制作方法、10KV高壓電纜終端和接頭制作方法和10KV高壓電纜敷設技術要求

    2024/11/24 14:23:10 人評論 次瀏覽
  • 盤點照明用電特級負荷有哪些

    照明設計時首先要知道不同場所、不同等級、不同類型的建筑物照明用電負荷的負荷等級,它是合理配置照明電源及其配電系統的基礎。本文整理了相關標準中對照明用電負荷等級的要求,供大家參考??赡苣矝]想到,照明居然還有特級負荷

    2024/11/21 18:03:53 人評論 次瀏覽
  • 推薦兩種配電箱與橋架連接的施工方法

    在電氣安裝施工中,配電箱(柜)與橋架連接處如若不做處理,敷設的電線電纜外絕緣層就很容易被切割的孔洞四周及所遺留的毛刺割破或削薄,引發漏電或短路事故,所以需要對線纜進行保護。昌暉儀表在本文推薦兩種配電箱與橋架連接的施工方法,供大家參考

    2024/11/21 0:38:37 人評論 次瀏覽
  • 少數標準和設計還在采用接零保護的概念

    接零保護存在潛在的安全風險,它已被“接地”所取代,這就是保護接地。詳細可參考相關資料,在此不必贅述。但現在還在一些設計中出現“接零”、“保護接零”、“接零保護”等,少數標準還在采用“接零”的概念。下面列舉兩例進行說明

    2024/11/20 13:32:35 人評論 次瀏覽
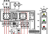
  • 圖說接線 電氣柜成套點評

    應昌暉儀表網網友的邀請對其貼出的2幅圖片中所示電氣柜的成套做一下點評,我也就老實不客氣,斗膽拋磚,有言語不周或點評不當的地方,還請眾網友們能及時指正,不勝感謝

    2024/11/20 0:03:49 人評論 次瀏覽
  • 繪制電氣控制原理圖的原則

    昌暉儀表與大家分享電氣控制原理圖繪制原則,幫助您更快熟悉各種類型電氣控制原理圖

    2024/11/19 13:25:42 人評論 次瀏覽
  • 什么情況要進行正電源定相試驗?

    什么情況要進行正電源定相試驗?1、電機、變壓器和電壓互感器在新建安裝、搬遷地址或大修以后,以及接線組別和內連線有過更動時;2、電源線路新建或變化走向,電纜線路接線有過更動時;3、發電機組的電壓互感器新投入或檢修后,同期裝置電壓回路有更改、變動、拆接以及更換二次…

    2024/11/18 15:35:05 人評論 次瀏覽
  • 從五個方面看電動機保護斷路器與配電保護斷路器的不同

    本文從保護對象的特性、斷路器本身保護特性和缺相保護原理、溫度降容等幾個方面,詳細對比電動機保護斷路器與配電保護斷路器的不同,方便廣大工程師了解二者之間的區別

    2024/11/18 14:19:05 人評論 次瀏覽
  • 短路時斷路器已動作,為何接觸器還是粘連

    故障發生時斷路器會分斷,但是無論斷路器分斷速度有多么快、限流能力有多么強悍,回路中的接觸器作為控制元器件,在斷路器分斷短路電流期間,它和電纜一樣需要被動地承受斷路器限流之后的電動力和熱量。假如斷路器的限流能力特別強,限制的電動力和熱量在接觸器正常承受的范圍…

    2024/11/7 8:00:55 人評論 次瀏覽
  • 低壓斷路器的短路分斷能力是否可以按照限流后的短路電流選取

    低壓斷路器“限流“的前提,首先是能成功分斷預期短路電流,分斷考核的是斷路器的滅弧能力;經過限流后的允通電流(截斷電流)是瞬時值,不能作為斷路器選擇短路短路分斷能力的基準,否則會進入無限的死循環,允通電流決定了斷路器出線端母線或其他器件需要承受的電動力大?。贿x…

    2024/11/7 4:08:15 人評論 次瀏覽
  • 聊聊溫升和溫度的含義

    "溫升"和"溫度"這兩個術語在物理學和工程學中經常被提及,但它們有著不同的含義

    2024/11/6 10:33:03 人評論 次瀏覽
  • 稀油站工作原理及電氣控制

    介紹稀油站工作原理和稀油站電氣控制原理,方便用戶熟悉稀油站電氣控制操作

    2024/10/28 0:39:48 人評論 次瀏覽
  • 高低壓配電室配電柜前鋪設絕緣膠墊的依據

    高低壓配電室配電柜前鋪設絕緣膠墊大家都能達成統一認識,對于獨立的配電柜前有沒有要求必須鋪設絕緣膠墊沒有明確依據。對于配電室高低壓柜鋪設絕緣膠墊的依據電工基礎欄目給大家整理一下,供大家參考

    2024/10/14 0:32:38 人評論 次瀏覽
  • 如何利用現有試驗設備進行電流互感器極性判斷

    電流互感器裝反或二次線接反會導致的保護動作,解決這個問題最簡單的方法就是利用現有的試驗項目和試驗設備進行電流互感器極性判斷。本文說說怎樣利用測控裝置或能顯示相位角的儀表協助查看

    2024/9/29 1:13:12 人評論 次瀏覽
  • 不同溫度下銅排載流量如何換算

    設計院的工程師經常會用《工業與民用配電手冊》第四版第九章的表9.3-35來規定低壓柜內主母線的載流量,見下表:該表中銅排載流量是基于環境溫度25℃,最高允許運行溫度70℃來定義銅排載流量,比如表面處理為涂漆單根TMY10010載流量為2265A(豎直安裝)。但實際上,考慮到元器件和…

    2024/9/26 15:53:17 人評論 次瀏覽
  • 聊聊海外17.5kV開關柜

    越來越多國外項目要求17.5kV開關柜。國內普遍采用24kV開關柜替代,不僅尺寸比國外常規17.5kV開關柜大40%,而且成本也比國外17.5kV開關柜多30%(同等產品檔次、品質),不能滿足客戶空間占用以及價格的要求

    2024/9/26 12:32:37 人評論 次瀏覽
  • 聊聊開關柜整機鹽霧試驗那些事

    現在很多客戶要求開關柜整機通過168小時鹽霧試驗。而傳統一般的要求是開關柜內典型零部件如彈簧/主軸或標準件等通過96小時鹽霧試驗,那么問題來了,哪個試驗更嚴酷些呢?開關柜整機鹽霧試驗模擬產品實際運行情況,更能反映現實情況,那開關柜整機鹽霧試驗結果如何呢

    2024/9/19 10:11:49 人評論 次瀏覽
  • 簡易求解正序、負序、零序的方法

    三相不平衡的電壓或電流可分解為平衡的正序、負序和零序。正序:將B、C相指針撥到與A方向大概一致,即B相逆時針轉120度,C相順時針轉120度,3個向量相加,除以3,即為正序的 A 相;負序:將B、C相位置大概調換,即B相順時針轉120度,C相逆時針轉120度,3個向量相加,除以3,即…

    2024/9/8 1:32:48 人評論 次瀏覽
  • 如何正確使用兆歐表

    兆歐表又稱搖表,主要用于測量電氣設備的絕緣電阻,刻度是以兆歐(MΩ)為單位。本文主要介紹兆歐表的正確使用方法

    2024/8/30 22:30:23 人評論 次瀏覽
  • 舉例法驗算LED燈具沖擊電流

    在文章《結合GB/T50034-2024聊聊LED燈沖擊電流》聊了LED燈沖擊電流,下面聊聊LED燈具的沖擊電流,與大家交流

    2024/8/28 1:58:47 人評論 次瀏覽
  • 結合GB/T50034-2024聊聊LED燈沖擊電流

    《建筑照明設計標準》GB/T50034-2024對LED燈和LED燈具的沖擊電流規定是這次新增加的內容,先看一下LED燈的沖擊電流,具體規定如下:3.2.5條第5款規定,LED燈的啟動沖擊電流峰值不應大于40A,持續時間應小于lms。有專家結合BEAMA等國外標準針對LED燈沖擊電流來選擇斷路器,而今…

    2024/8/23 10:27:42 人評論 次瀏覽
  • 一個變電所低壓配電可以同時有TN-S、TN-C-S、TT系統嗎

    一個變電所低壓配電可以同時有TN-S、TN-C-S、TT系統,但要具體分析問題。本文就說說其中的原因

    2024/8/20 13:47:55 人評論 次瀏覽
  • 開關設備母線搭接,規范這樣說

    母線搭接無需滿搭接,即無需滿足搭接長度需要和寬度一致的要求,制造廠可以根據產品設計決定母線搭接長度及螺栓數量、自行決定螺栓的擰緊力矩

    2024/8/20 13:21:00 人評論 次瀏覽

相關儀表推薦

 友情鏈接